
家の印象がガラッと変わる!賢く予算を配分して叶える「理想の暮らし」リフォーム
ご自宅を、新築のように快適な住まいへフルリフォームしました。
最大の課題であった予算配分は、お客様と念入りに検討し、費用対効果の高い設備と仕上げ材を厳選。
外壁と屋根を塗装し、玄関ドアや水回りを一新したことで、家の印象がガラリと変わりました。
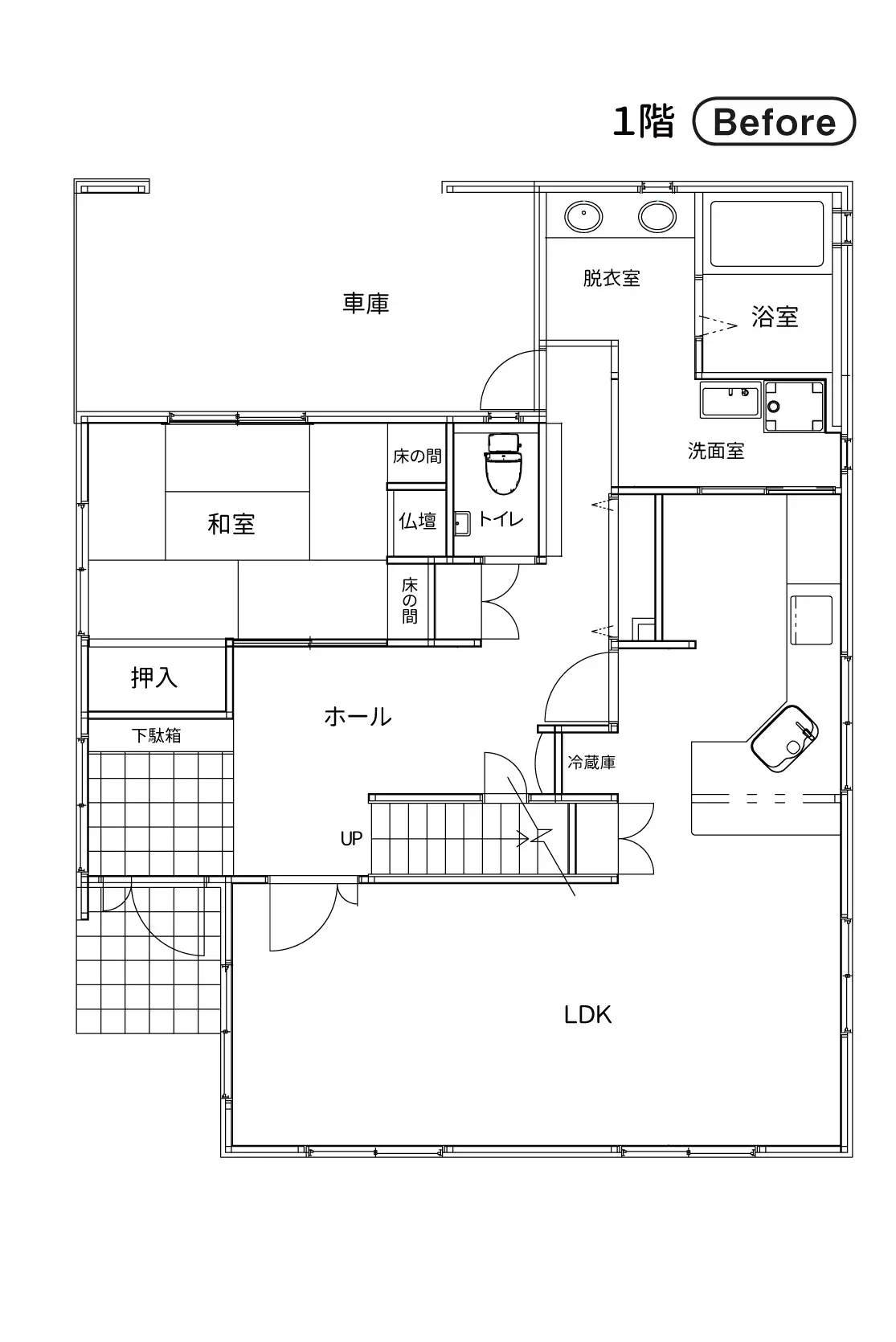
和室を洋室に変更し、天井の空調設備を撤去したことで、空間がすっきりと広々とした印象に。
ご夫婦には「違う家みたい」と大変喜んでいただけました。
Data
| 所在地 | 吹田市垂水町 |
|---|---|
| 建物種類 | 戸建て |
| 工事日数 | 50日 |
| 施工箇所 | 屋根・外壁塗装、水まわり交換、和室を洋室に、内装リフレッシュ、他 |
| 施工内容 | 戸建てフルリフォーム |
| 工事金額 | 1,100万円 |
※工事金額は施工当時のものであり、現在の価格とは異なる場合があります。
※上記のほかに養生や運搬等に係る諸経費、ならびに消費税が必要です。
BEFORE AFTER
BEFORE

AFTER

BEFORE

AFTER

BEFORE

AFTER

BEFORE

AFTER

BEFORE

AFTER

BEFORE

AFTER

BEFORE

AFTER

BEFORE

AFTER

PLAN






GALLARY



















