
「前の家が思い出せない」ほど大変身!築年数を感じさせないフルリノベーション
お子様の成長に合わせた間取り変更と、住宅全体のリフレッシュを兼ねた大規模リノベーション。
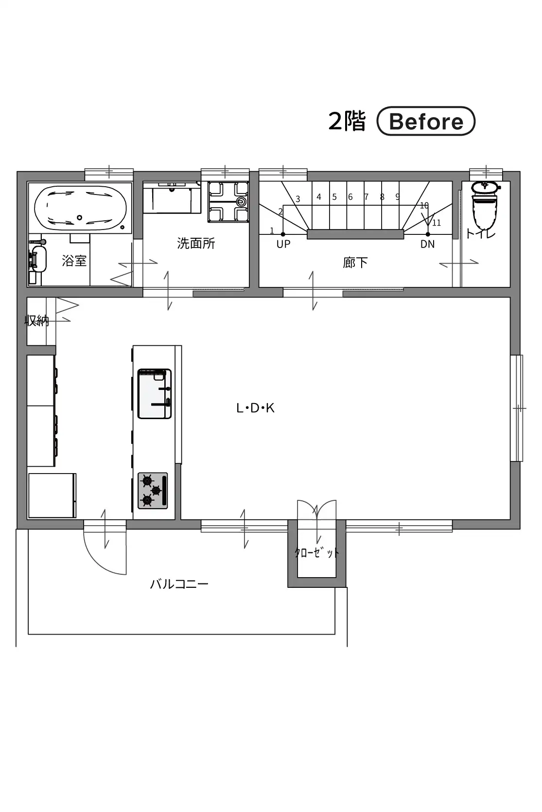
最大のポイントは、3階を2部屋から3部屋に間仕切りした点です。
構造上の制約がある中でも、柱や筋交を工夫して移設することで、デッドスペースのない均等な3部屋を実現し、お客様に大変ご好評いただきました。
家族が集まるリビングには高品質なフローリングを採用する一方、プライベート空間には普及グレードを選ぶなど、費用対効果を考慮したメリハリのある賢い建材選びを提案。
外壁・屋根塗装や水回り交換に加え、床暖房とエコキュートも新設し、デザイン性と省エネ性能を両立させた住まいが完成しました。
Data
| 所在地 | 大阪市淀川区 |
|---|---|
| 建物種類 | 戸建て |
| 工事日数 | 75日 |
| 施工箇所 | 屋根・外壁塗装、間取り変更、水回り交換、内装リフレッシュ、他 |
| 施工内容 | 戸建て全面リノベーション |
| 工事金額 | 1500万円 |
※工事金額は施工当時のものであり、現在の価格とは異なる場合があります。
※上記のほかに養生や運搬等に係る諸経費、ならびに消費税が必要です。
BEFORE AFTER
BEFORE

AFTER

BEFORE

AFTER

BEFORE

AFTER

BEFORE

AFTER

BEFORE

AFTER

BEFORE

AFTER

BEFORE

AFTER

PLAN






GALLARY



















